Vente villa, Brignoles (83170)
Réf. 501V47481M - Mandat n°13556
- 150 m²
- 4 000 m²
- 4
- 3
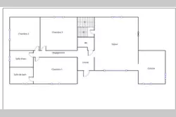
Belle Maison néo-provençale de 100 m² environ de plain-pied 150 m² environ d'emprise au sol sur un terrain constructible de 4 000 m² Située dans un quartier résidentiel recherché, au calme absolu, cette propriété séduira les amateurs de nature et agrandissement possible. - Spacieux séjour avec baies à galandage ouvrant sur une terrasse plein Sud - Cuisine provençale avec terrasse couverte exposée Est, vue dominante - 3 chambres avec placards dont une suite parentale - Espace piscine 9 x 4,5 m, entouré de larges terrasses - Chalet aménagé de 20 m² : salle d'eau, WC, chambre, mezzanine - Sous-sol complet : grand garage, buanderie, cave - Forage + eau de ville Environnement calme et verdoyant 04 94 37 11 03 - Les Clés du Soleil – Brignoles
À vendre – Maison néo-provençale avec piscine et dépendance – Quartier Les Censiés, Brignoles sur 4000 m2 de terrain constructible.
EXCLUSIVITÉ – Dans un environnement calme et recherché, au cœur du quartier résidentiel des Censiés, découvrez cette charmante maison de style néo-provençal d'environ 150 m² dont garage (maison 100m2) , nichée dans un écrin de verdure.
Elle se compose d'une cuisine provençale ouvrant sur une terrasse couverte exposée Est avec vue dégagée, d'un lumineux salon-séjour prolongé par une grande terrasse plein Sud, agrémentée d'une pergola maçonnée.
L'espace nuit propose trois chambres avec placards intégrés, dont une suite parentale, ainsi qu'un cabinet de toilette.
Les extérieurs : un véritable havre de paix
Belle piscine 9 x 4,5 m entourée d'une large plage
Chalet indépendant de 20 m², aménagé avec salle d'eau, WC, dressing, chambre et mezzanine
Les plus :
Terrain clos et arboré de plus de 4 000 m², avec essences méditerranéennes
Forage + eau de ville
Quartier résidentiel recherché, calme absolu
Cave, buanderie en sous-sol, grand garage
Volumes confortables, prestations extérieures soignées
04 94 37 11 03 - LES CLES DU SOLEIL BRIGNOLES
réf. 501V47481M
Caractéristiques
- Surface séjour : 40 m²
- Surface terrain : 4 000 m²
- Année construction : 2000
- Exposition : Plein sud
- Vue : Campagne
- Eau chaude : Electrique
- État intérieur : A moderniser
- État extérieur : Bon
- Couverture : Tuiles
- 4 chambres
- 2 terrasses
- 1 salle de bain
- 2 salles de douche
- 2 toilettes
- 10 parkings
- 1 cave
Prestations
- Calme
- Double vitrage
- Climatisation
- EAU DE VILLE et forage
- annexe aménagée au bord de la piscine
- Piscine
- Forage
- Chambre de plain-pied
- Cheminée
- Buanderie
Informations légales
- 470 000 €
Honoraires à la charge du vendeur, aucune procédure en cours, les informations sur les risques auxquels ce bien est exposé sont disponibles sur georisques.gouv.fr, notre barème de prix est consultable ici
Infos pratiques
classe énergie (DPE) C - Emission de gaz à effet de serre (ges) A












